À Bayonne, sur l’Avenue du 14 Avril, local professionnel réparti sur deux niveaux, bénéficiant d’une vitrine sur rue et d’un agencement fonctionnel : au rez-de-chaussée, espace d’accueil et pièces/bureaux, sanitaires et accès à une cour intérieure ; à l’étage, palier desservant trois pièces indépendantes. Ensemble modulable, adapté à une activité de bureaux, services ou profession libérale. Bail professionnel en cours.
Local professionnel 119 m²
Bilan énergétique
Diagnostics énergetiques- Surface 119 m²
- 1 salle(s) d'eau
- 2 niveau(x)
Financier
Informations financièresComposition
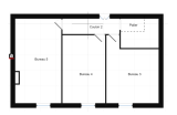
Composition de ce bienRez-de-chaussée
- accueil 25.84 m²
- bureau 10.91 m²
- Local 8.57 m²
- WC 1.19 m²
- Couloir 1.20 m²
- WC 1.19 m²
- DEGAGEMENT 4.50 m²
- salle d'eau 2.78 m²
- Cuisine 7.52 m²
- bureau 9.67 m²
- PALIER 1.30 m²
- Couloir 3.66 m²
- bureau 12.57 m²
- bureau 12.24 m²
- bureau 16 m²
Autour du bien
Découvrez le quartier
Les informations recueillies sur ce formulaire sont enregistrées dans un fichier informatisé par La Boite Immo agissant comme Sous-traitant du traitement pour la gestion de la clientèle/prospects de l'Agence / du Réseau qui reste Responsable du Traitement de vos Données personnelles.
La base légale du traitement repose sur l'intérêt légitime de l'Agence / du Réseau.
Elles sont conservées jusqu'à demande de suppression et sont destinées à l'Agence / au Réseau.
Conformément à la loi « informatique et libertés », vous disposez des droits d’accès, de rectification, d’effacement, d’opposition, de limitation et de portabilité de vos données. Vous pouvez retirer votre consentement à tout moment en contactant directement l’Agence / Le Réseau.
Consultez le site https://cnil.fr/fr pour plus d’informations sur vos droits.
Si vous estimez, après avoir contacté l'Agence / le Réseau, que vos droits « Informatique et Libertés » ne sont pas respectés, vous pouvez adresser une réclamation à la CNIL.
Nous vous informons de l’existence de la liste d'opposition au démarchage téléphonique « Bloctel », sur laquelle vous pouvez vous inscrire ici : https://www.bloctel.gouv.fr
Dans le cadre de la protection des Données personnelles, nous vous invitons à ne pas inscrire de Données sensibles dans le champ de saisie libre.
Ce site est protégé par reCAPTCHA, les Politiques de Confidentialité et les Conditions d'Utilisation de Google s'appliquent.
* TTC : Toutes Taxes Comprises